T6 de 152 m2 avec terrasse et jardin
152 m² - Meudon - 92190
876 000 €
Maison / Villa
Achat
Achat
Description
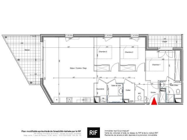
MEUDON 92190 - Sur les hauteurs de Meudon (limite Clamart et Issy-les-Moulineaux), proche hôpital Percy, Tramway (T2) et RER C à 10 minutes à pied. Une maison de ville en triplex de 152 m2 avec jardin/terrasse de 58 m2, solarium sur le toit de 46 m2 et deux places de parking en sous-sol. Entrée avec placard, réception de 42 m2 avec cuisine semi ouverte, une suite de 25 m2 (avec salle d'eau à l'italienne et dressing), quatre chambres, deux salles de bains et trois toilettes séparés. Profitez des dernières normes thermiques et phoniques pour un confort optimal et des charges réduites, d'une lumière naturelle et de prestations soignées. Résidence moderne et élégante composée de 22 logements. Prix : 876000 euros (parkings inclus). Étiquette énergie : B. Pour plus d'informations sur ce bien et découvrir l'ensemble de notre offre, contactez Delphine Lohier au 0603402158 - Conseillère du RIF (réseau immobilier de France) Retrouvez toutes nos annonces sur http://rif.rif - Consultez notre barème d'honoraires sur http://rif.rif/bareme-honoraires.phpInformations supplémentaires
Contact
Téléphone: 06 26 53 02 20ARGENT Laurent
6 rue des monts du vivarais
L'UNION 31240
Répondre par Email



