T4 de 79 m² avec balcon plein Sud
79 m² - Alfortville - 94140
459 000 €
Appartement
Achat
Achat
Description
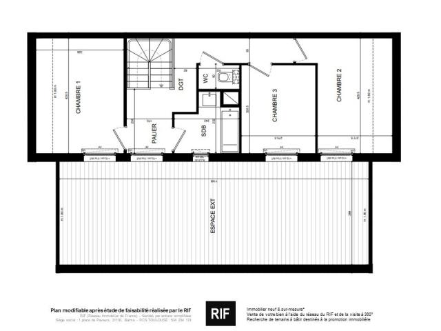
ALFORTVILLE, 94140 - A 700 mètres du métro Ligne 8.Un appartement 4 pièces de 79 m² habitables.
Étage : 2e (ascenseur).
Extérieur(s) : Balcon (5 m²).
Stationnement(s) : 1 place de parking.
Cave(s) : sans.
Particularités : Traversant, balcon plein Sud, espace de vie avec cuisine ouverte, dressing, 2 pièces d'eau, belles prestations, dernières normes thermiques et phoniques, résidence intime et conviviale avec son jardin partagé.
Prix : 459000 euros.
Étiquette énergie : B.
Contacter Fabienne Dessagnes au 0611427811 - Conseillère du RIF (Réseau Immobilier de France).
Retrouvez le catalogue en ligne du RIF et ses services sur son site Internet. Retrouvez toutes nos annonces sur http://le-rif.com - Consultez notre barème d'honoraires sur https://www.le-rif.com/
Informations supplémentaires
DPE classe énergie :
GES :
Contact
Téléphone: 06 11 42 78 11DESSAGNES Fabienne
16 place de France
BALMA 31130
N° SIRET :
Répondre par Email


