Description

LANCON-PROVENCE 13680 - en coeur de village, proche de toutes les commodités.
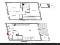
Une maison agréable, 4 pièces de 100 m² habitables.
Étage : 2 étages.
Particularités : en parfait état, aucun travaux à prévoir, toiture sous décennale, pièce à vivre de 30 m², cuisine américaine équipée et sous garantie pendant 2 ans, 3 chambres dont 1 suite parentale de 25 m² avec mezzanine, salle d'eau, 3 WC.
Prix : 220000 euros.
Taxe foncière : 1000 euros.
Étiquette énergie : D.
Contactez Sébastien LESOBRE au 0631136815 - Conseiller du RIF (Réseau Immobilier de France).
Retrouvez le catalogue en ligne du RIF et ses services sur son site Internet. Retrouvez toutes nos annonces sur http://le-rif.com - Consultez notre barème d'honoraires sur https://www.le-rif.com/
Twitter Facebook email

Informations supplémentaires

DPE classe énergie : Goouse
GES : Goouse

Contact

Téléphone: 06 20 43 86 83
DAZY guillaume
16 place de France
BALMA 31130
N° SIRET :
Photos :
Maison de village T4 de 100 m²Maison de village T4 de 100 m²Maison de village T4 de 100 m²Maison de village T4 de 100 m²
Pub :

Retour accueil