Appartement 4 pièces de 94 m² avec terrasse de 46 m²
94 m² - Fenouillet - 31150
279 900 €
Appartement
Achat
Achat
Description
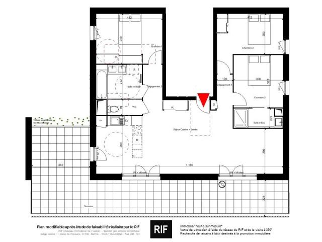
31150, Fenouillet, à proximité immédiate des commodités et de la future gare multimodale prévue pour 2024.Au 2e étage d'une nouvelle résidence avec ascenseur, le RIF a sélectionné pour vous un appartement 4 pièces de 94 m² avec une terrasse de 46 m² et un parking double extérieur couvert.
Entrée, espace de vie 40 m² avec cuisine ouverte, chambre parentale, deux chambres (11 et 12 m²), salle d'eau et salle de bains, placards et WC séparés.
Triple exposition, vue sur les jardins, dernières normes thermiques et phoniques.
Prix : 279900 euros, frais de notaire réduits. Étiquette énergie : B.
Contacter Jean-Michel VIVES au 0611083989, conseiller du RIF (Réseau Immobilier de France).
Le RIF c'est : l'immobilier neuf sur-mesure*, la vente de votre bien à l'aide de notre réseau et de la visite 360°, la recherche de terrains à bâtir. Retrouvez toutes nos annonces sur http://le-rif.com - Consultez notre barème d'honoraires sur https://www.le-rif.com/
Informations supplémentaires
DPE classe énergie :
GES :
Contact
Téléphone: 06 11 08 39 89VIVES Jean-Michel
16 place de France
BALMA 31130
N° SIRET :
Répondre par Email


