T4 de 126 m² avec terrasses et jardin
126 m² - Paris 15ème - 75015
2 080 000 €
Appartement
Achat
Achat
Description
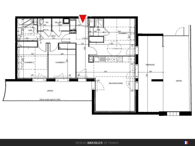
75015, PARIS - Véritable adresse parisienne au coeur d'un quartier animé. Au rez-de-jardin d'une résidence moderne, le RIF vous propose un appartement Duplex d'exception 4 pièces de 126 m² habitables avec terrasses (14 et 19 m²), jardin de 25 m² et une cave. Entrée avec placard, espace réception de 35 m² avec cuisine séparée, trois grandes chambres, trois dressings, deux salles d'eau, une salle de bain et trois toilettes. Calme absolu, lumière naturelle, prestations de qualité, dernières normes thermiques et phoniques. Prix : 2080000 euros, frais de notaire réduits. Étiquette énergie : B. Contactez Delphine Lohier au 0603402158 - Conseillère du RIF (Réseau Immobilier de France). Retrouvez le catalogue en ligne du RIF et ses services sur son site Internet. Retrouvez toutes nos annonces sur http://le-rif.com - Consultez notre barème d'honoraires sur https://www.le-rif.com/Informations supplémentaires
DPE classe énergie :
GES :
Contact
Téléphone: 06 03 40 21 58LOHIER Delphine
16 place de France
BALMA 31130
N° SIRET :
Répondre par Email



