Appartement T3 de 84 m² avec terrasse
84 m² - SAINT-RAPHAEL - 83700
429 000 €
Appartement
Achat
Achat
Description
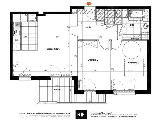
83700, Saint-Raphaël, à proximité du Golf de Valescure et des commodités.Au 1er et dernier étage d'une nouvelle résidence avec ascenseur, le RIF a sélectionné pour vous un appartement 3 pièces de 84 m² avec terrasses de 14 m² et un parking en sous-sol.
Entrée, pièce à vivre de 42 m² avec cuisine ouverte, deux chambres (12 et 10 m²), salle d'eau et salle de bains, placards et deux WC.
Résidence de 10 logements, piscine, lumière naturelle, prestations de qualité, dernières normes thermiques et phoniques.
Prix : 429000 euros, frais de notaire réduits. Étiquette énergie : B.
Contacter Bruno GIRAUD au 0607589844, conseiller du RIF (Réseau Immobilier de France).
Le RIF c'est : l'immobilier neuf sur-mesure*, la vente de votre bien à l'aide de notre réseau et de la visite 360°, la recherche de terrains à bâtir.
Retrouvez toutes nos annonces sur http://le-rif.com - Consultez notre barème d'honoraires sur https://www.le-rif.com/
Informations supplémentaires
DPE classe énergie :
GES :
Contact
Téléphone: 06 07 58 98 44GIRAUD Bruno
16 place de France
BALMA 31130
N° SIRET :
Répondre par Email


